
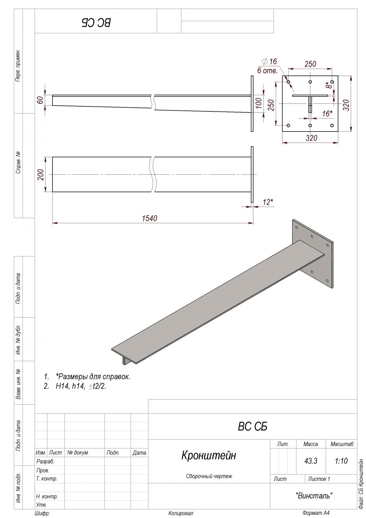
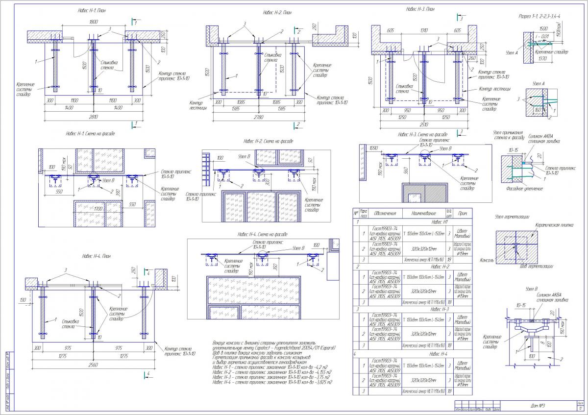
Монтаж навісів над входами.
Житловий комплекс вул. Відпочинку 9а. м. Київ.
Період реалізації з листопада 2013 по листопад 2015.
47 навісів на 9-ти будинках.

Ваше ім’я
Ваш e-mail
Номер телефону
Тема питання
НОВИНКА: ВИРОБИ ІЗ НЕРЖАВІЮЧОЇ СТАЛІ!!!
До уваги клієнтів: введена в експлуатацію ДОДАТКОВА ЛІНІЯ ГАРТУВАННЯ! Загартуємо Ваше скло протягом доби! (працюємо цілодобово)






















