
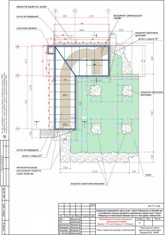
Музеїфікация фундаменту старовинної церкви в Білій Церкві.
Реалізація проекту літо 2015 року.

Ваше ім’я
Ваш e-mail
Номер телефону
Тема питання
НОВИНКА: ВИРОБИ ІЗ НЕРЖАВІЮЧОЇ СТАЛІ!!!
До уваги клієнтів: введена в експлуатацію ДОДАТКОВА ЛІНІЯ ГАРТУВАННЯ! Загартуємо Ваше скло протягом доби! (працюємо цілодобово)






















